Beschrijving
Type toiletwagen 4-1-5
specificatie
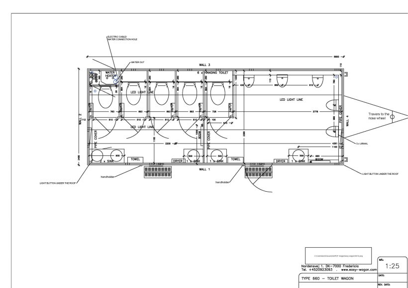
Toilettrailer met 2 compartimenten
Max. toegestaan totaalgewicht: 2.700 Kg
Aantal assen: 2 2480 mm breed 6600 mm lang
Uitrusting: 5 x keramische WC – hangend 5 x urinoir
4 x wastafel met kraan, tafel en kastje, spiegel 2 x handdroger
Diversen:
2 x toegangsdeur
2 x opvouwbare trap
1 x tech. deur
2 x duw/trekhendel aan de voorzijde
1 x zoetwaterslang – 25 m
2 x kabel 230V 16A – 25 m
Ontwerp:
-Dak – 60 mm gegoten GVK sandwichelement met een 57 mm schuimkern zonder voegen die absolutedichtheid garanderen.
-Vloer – 60 mm sandwichpaneel met schuimkern, draadlaag en vinyl coating. Totale dikte 71 mm.
-Wanden – 50 mm PUR-schuim sandwichpanelen met 1,5 mm glasvezel aan elke zijde.
-Chassis – thermisch verzinkte gelaste staalstructuur.
-Zware neuswielen.
Onderdelen:
-Voornamelijk standaard componenten die een eenvoudige service of reparatie mogelijk maken indiennodig.
-Wij gebruiken alleen onderdelen van gerenommeerde leveranciers.
-Alle binnenverlichting is gebaseerd op LED.
-Alle trailers worden geleverd met 13-polige aansluiting.
Prijzen zijn exclusief BTW en inclusief Nederlands kenteken op naam of COC documenten.
*Onder voorbehoud van prijswijzigingen.

































