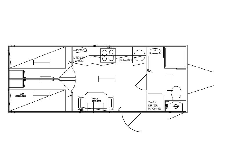
Beschrijving
Woonunit 1 of 2 slaapkamers (1-4 personen)
LxHxB: 6.6 x 2,5 x 3,1m
- Accommodatie voor 1 tot 4 personen
- elektrisch verwarmde mobiele unit
- ingerichte keuken met toebehoren (afzuigkap, gasfornuis, koelkast, vaat of wasmachine)
- 1 of 2 aparte slaapkamers met bedden, eventueel stapelbedden,
- badkamer met toilet, douche en wastafel inclusief spiegel.
- elektrische boiler
- thermostaatkraan, douchegordijn
- afvoer toilet met vermaler
Prijzen zijn exclusief BTW en inclusief Nederlands kenteken op naam of COC documenten.
*Onder voorbehoud van prijswijzigingen.
Lease is ook mogelijk. Informeer naar de mogelijkheden.

























