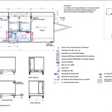
Beschrijving
Deco-wagen
De mobiele Decontaminatiewagen van Maas Mobile biedt u veiligheid en kwaliteit bij uw asbest-en grondsaneringswerkzaamheden.
Onze decontaminatiewagens zijn in verschillende maten en uitvoeringen verkrijgbaar en standaard van voorzien van:
- chassis geheel thermisch verzinkt.
- 4 st steunpoten
- Alko remmen
- geheel vlakke vloer met watervaste-vinyl vloerafwerking
- vloer, wanden en dak van polyester sandwichpanelen
- dikte vloer = 60 mm / Dikte wanden = 50 mm / Dikte dak = 57 mm
- kleur opbouw: geheel wit(op kleur meerprijs, prijs op aanvraag)
- toegangsdeuren met cilinderslot
- onderdrukmachine
- 3 compartimenten
- waterfilter
- boiler
- elektrische verwarming
- douche met thermostaatkraan
- Bypass voor Decontaminatiesystemen
- Extra opties zelf supported
- schoon/vuilwatertank
- zonnepanel
- accu
- dieselverwarming en boiler (webasto)








































